top of page

Create Your First Project
Start adding your projects to your portfolio. Click on "Manage Projects" to get started
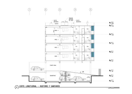
EDIFICIO - SAN ANOTNIO ABAD
Tipo de proyecto
ESTRUCTURA MIXTA (COMPUESTA) REFORZAMIENTO ESTRUCTURAL DIRECCIÓN TÉCNICA
Ubicación
CIUDAD DE MÉXICO, MÉXICO.












bottom of page

